Description
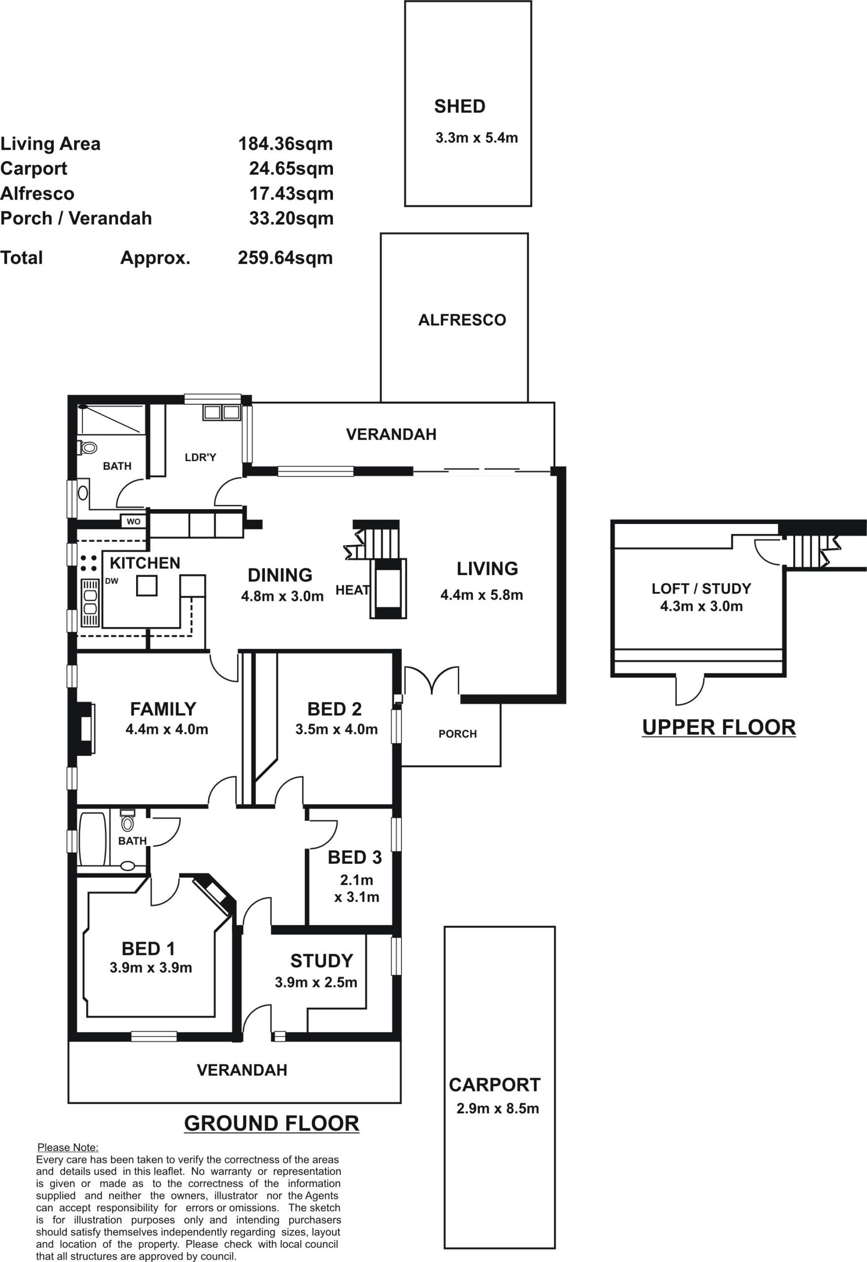
3/4 Beds - Study - 2 Living area - 2 Bathrooms - Workshop
House Sold - PAYNEHAM SA
CIRCA 1914 ERA STONE RESIDENCE
9 MAIN ROOMS OF CHARM AND AN ENCHANTING GARDEN
Set in tree-lined near city street this long held family home has been well preserved yet ready to be further enhanced at your leisure
Ideal work from home layout with up to 4 bedrooms plus study/office with separate entrance
North facing rear dining/family areas are defined by 2 way open fire place and access onto a spacious Alfresco patio
Other features include – 2 bathrooms, 2nd living room, marble theme kitchen and teenagers loft
A secluded hobby/workshop area and “rock wall” elevated garden will please those seeking a more self- sustainable life style
CHARM – OPPORTUNITY & ACCOMMODATION FOR YOUR TAKING”
AUCTION: Saturday 12th December AT 1:00 PM
RLA 158869
The Vendor’s Statement (Form 1) will be available for perusal by members of the public:-
(A) at the office of the agent for at least 3 consecutive business days immediately preceding the auction; and
(B) at the place at which the auction is to be conducted for at least 30 minutes immediately before the auction commences.
Property Features
- House
- 4 bed
- 2 bath
- 2 Parking Spaces
- Air Conditioning
- 2 Carport
- Built In Robes


















